客室案内
▲ページTOPに戻る

シングルルームAタイプ                                                    Single Room Type A


スタンダードな設備を備えたシングルルーム。ビジネスパーソンに最適です。




シングルルームAタイプ シングルルームAタイプ見取り図

※画像をクリックすると拡大します。

   

客室情報

                                                          
広さ15㎡
客室数 60室
ベッドサイズ 120cm


シングルルームBタイプ                                                  Single Room Type B


よりゆったりおくつろぎいただける少し広めのシングルルームです。




シングルルームBタイプ シングルルームBタイプ見取り図

※画像をクリックすると拡大します。

   

客室情報

                                                          
広さ17㎡
客室数 42室
ベッドサイズ 140cm


ダブルルーム                                                          Double Room


カップルやご夫婦のご宿泊に最適なスタンダードなダブルルームです。




ダブルルーム ダブルルーム見取り図

※画像をクリックすると拡大します。


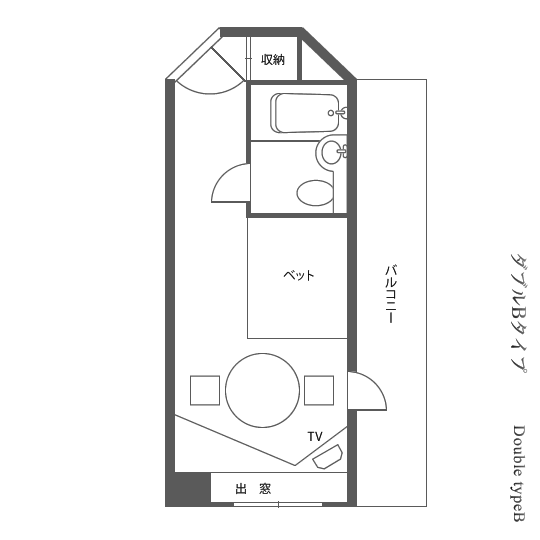
バルコニー付きダブルルーム バルコニー付きダブルルーム見取り図

※画像をクリックすると拡大します。




   

客室情報

                                                          
広さ18㎡
客室数 11室
ベッドサイズ 160cm


デラックスダブルルーム                                                 Deluxe Double Room


リビングルームとベッドルームを分けた広々としたダブルルームです。




デラックスダブルルーム デラックスダブルルーム見取り図

※画像をクリックすると拡大します。

   

客室情報

                                                          
広さ35㎡
客室数 2室
ベッドサイズ 154cm


スタンダードツインルーム                                                 Standard Twin Room


おふたりでもゆったりお使いいただける快適なツインルームです。




スタンダードツインルーム スタンダードツインルーム見取り図

※画像をクリックすると拡大します。

   

客室情報

                                                          
広さ25㎡
客室数 36室
ベッドサイズ 120cm


デラックスツインルーム                                                   Deluxe Twin Room


エキストラベッドを入れることで3名様のご利用も可能な広いツインルームです。




デラックスツインルーム デラックスツインルーム見取り図

※画像をクリックすると拡大します。

   

客室情報

                                                          
広さ31㎡
客室数 3室
ベッドサイズ 120cm


スイートルーム                                                          Suite Room


レクストン鹿児島唯一のスイートルーム。優雅なホテルライフをお楽しみください。




スイートルーム スイートルーム見取り図

※画像をクリックすると拡大します。

   

客室情報

                                                          
広さ41㎡
客室数 1室
ベッドサイズ 120cm




ホーム | ご宿泊 | ダイニング皇' | 料亭竹千代 本館 | 竹千代仕出し部 | 宴会 | 想咲鉄板薩摩 | 施設案内 | プライバシーポリシー | 宿泊約款 

ホテル・レクストン鹿児島
〒892-0844
鹿児島県鹿児島市山之口町4-20
TEL : (099)222-0505
FAX : (099)225-7989